Location 558,45 € - Appartement - Lyon 6e Arrondissement
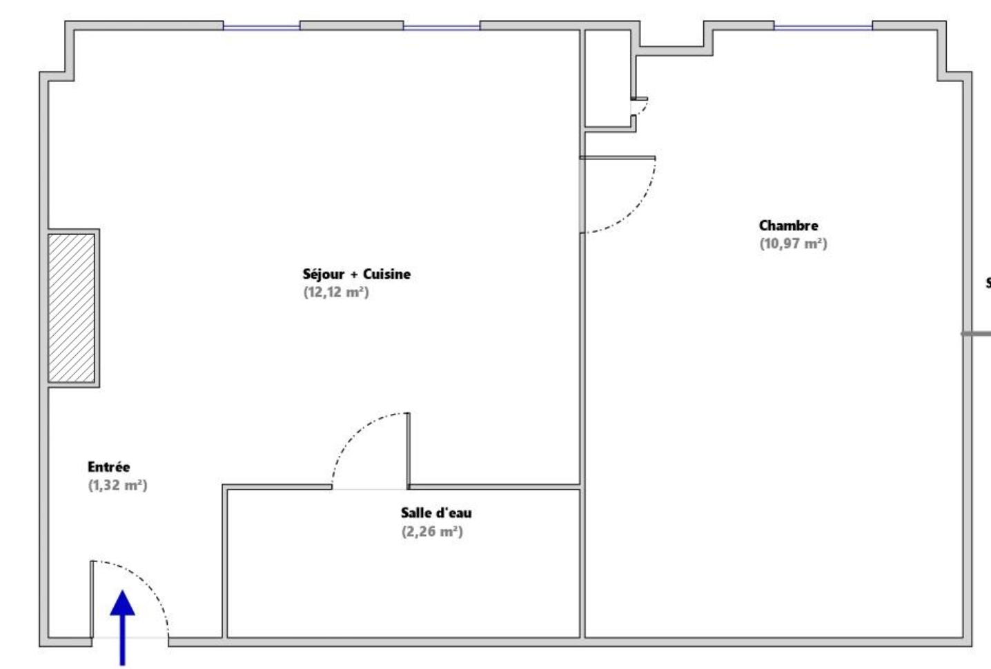
Idéalement situé a proximité immédiate du Métro Masséna (ligne A) et des commerces. Appartement situé au 2ème étage sans ascenseur. Il se compose d’une pièce de vie avec coin cuisine, une seconde pièce pouvant faire office de chambre ou de salon, une salle d’eau avec douche et toilettes non séparées. Chauffage individuel électrique. Tous les abonnements sont individuels. Libre le 16 février 2026. Référence 3143.
Logement soumis à l’encadrement des loyers:
Loyer de référence : 17,50 €/m2
Loyer de référence majoré : 21,00 €/m2
Visite sur place obligatoire avant tout dépôt de dossier (en ligne uniquement)
Dépot de dossier en ligne sur SEVENTEEE uniquement.
Caractéristiques
| Annonce | 3143 |
| Surface | 26,67 m² |
| Nombre de pièces | 1 |
| Nombre de salles de bain | 1 |
| Nombre de WC | 1 |
| Type de chauffage | Individuel Électrique |
| Type cuisine | Coin cuisine |
| Etage | 2 |
| Date réalisation DPE | 21/01/2026 |
| Version DPE | Après le 1 juillet 2021 |
| Coût mini consommation | 720,00€ |
| Coût max consommation | 1 030,00€ |
| Année de référence DPE | 2021,2022,2023 |
| Ascenseur | Non |
| Prix | 558,45 € |
| Honoraires TTC | 346,71 € |
| Honoraires / Etat des lieux | 80,01 € |
| Charges | 15,00 € |
| Dépôt de garantie | 543,71 € |







Visite 3D