Location 1 242,25 € - Appartement - Lyon 6e Arrondissement
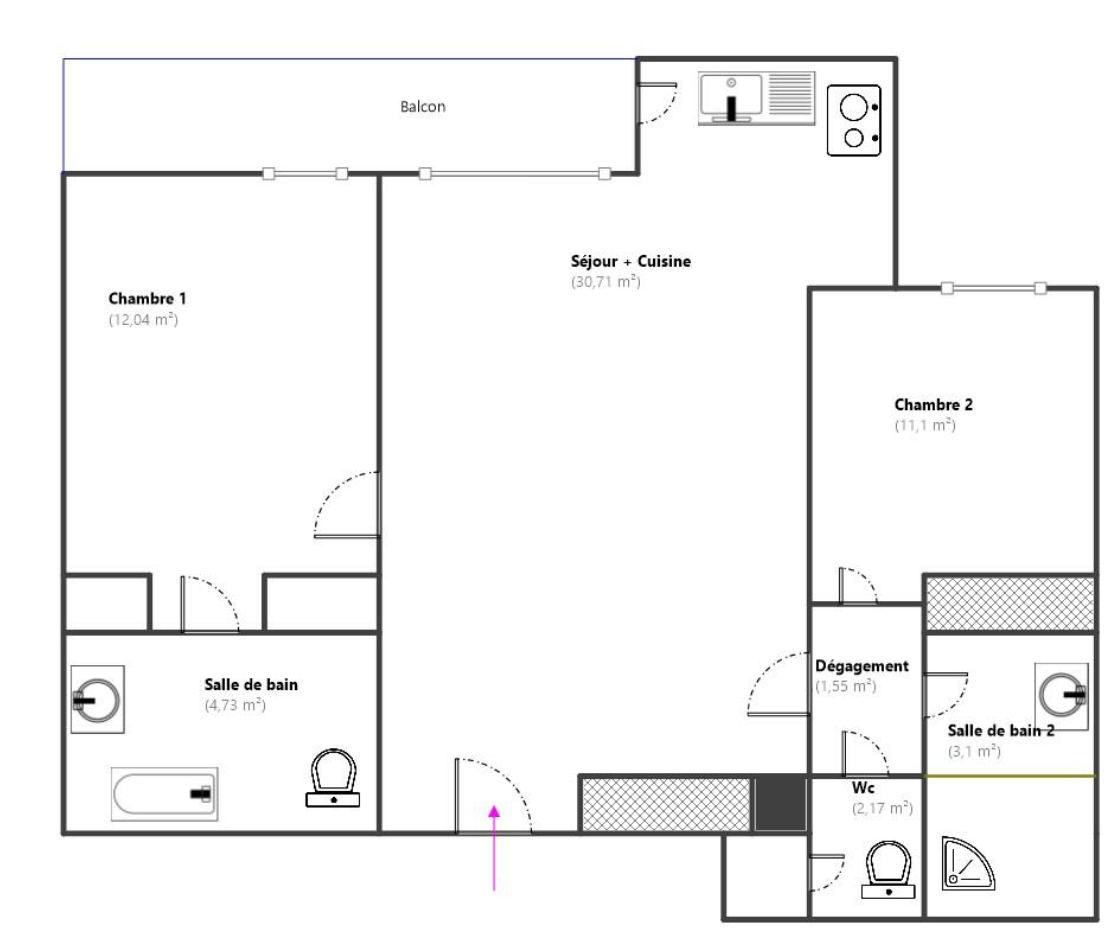
Secteur Part Dieu, a deux pas de la Gare et du centre commercial, a proximité des Tramways T1 et T4 arrêt Thiers Lafayette. Appartement au 1er étage avec ascenseur. Il se compose d’une pièce de vie ouverte sur la terrasse, une cuisine américaine meublée et équipée de plaques de cuisson, hotte, four, micro-onde et lave vaisselle, une suite parentale également ouverte sur la terrasse avec sa salle de bains et son toilettes, une seconde chambre avec placard, une salle d’eau Avec douche et toilettes séparés. Chauffage individuel au gaz (entretien annuel de la chaudière inclus dans les charges). Tous les abonnements sont individuels. Le garage double en enfilade est loué en supplément (deux baux différents). Logement PINEL, plafonds de ressources, Zone A a respecter. Libre de suite. Référence : 3188
Loyer appartement hors charges : 932,25 euros
Provision de charges mensuelle pour l’appartement : 75,00 euros
Loyer garage : 235,00 euros
Dépot de garantie pour l’appartement : 932,25 euros
Dépot de garantie pour le garage : 80,00 euros
Logement soumis à l’encadrement des loyers :
Loyer de référence : 13,10€/m2
Loyer de référence majoré : 15,70€/m2
Les informations sur les risques auxquels ce bien est exposé sont disponibles sur le site Géorisques : www.georisques.gouv.fr
Dépot de dossier en ligne sur SEVENTEEE uniquement.
Caractéristiques
| Annonce | 3188 |
| Surface | 65,40 m² |
| Nombre de pièces | 3 |
| Nombre de salles de bain | 2 |
| Nombre de parkings | 2 |
| Nombre de chambres | 2 |
| Nombre de WC | 2 |
| Type de chauffage | Individuel Gaz |
| Type cuisine | Américaine équipée |
| Etage | 1 |
| Date réalisation DPE | 20/04/2026 |
| Version DPE | Après le 1 juillet 2021 |
| Coût mini consommation | 1 310,00€ |
| Coût max consommation | 1 830,00€ |
| Année de référence DPE | 2021,2022,2023 |
| Ascenseur | Oui |
| Placards | Oui |
| Prix | 1 242,25 € |
| Honoraires TTC | 850,20 € |
| Honoraires / Etat des lieux | 196,20 € |
| Charges | 75,00 € |
| Dépôt de garantie | 1 012,25 € |










Visite 3D