Location 2 227,90 € - Appartement - Lyon 6e Arrondissement
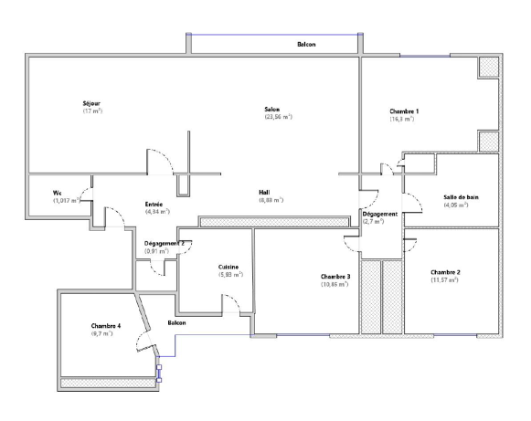
Au coeur du 6ème arrondissement, à proximité du métro Foch et des commerces, dans une Résidence sécurisée. Il se situe au 4ème étage avec ascenseur. Il se compose d’une entrée avec placard, un séjour double ouvert sur le balcon (donnant coté rue), une cuisine séparée meublée, 3 chambres dont deux équipées de placards, une 4ème pièce pouvant faire office de chambre d’appoint ou de bureau (passage par l’extérieur pour y accéder), une salle de bains avec baignoire et toilettes séparées. Garage fermé loué avec l’appartement (non situé dans l’immeuble mais dans une rue a proximité). Chauffage et eau froide collectifs. Libre de suite. Référence : 3095
Loyer de base : 1 599 euros + 428,90 euros de complément de loyer pour le garage et le balcon.
Logement soumis à l’encadrement des loyers :
Loyer de référence : 12,30€/m2
Loyer de référence majoré : 14,80€/m2
Dépot de dossier en ligne sur SEVENTEEE uniquement.
Caractéristiques
| Annonce | 3095 |
| Surface | 116,76 m² |
| Nombre de pièces | 5 |
| Nombre de salles de bain | 1 |
| Nombre de parkings | 1 |
| Nombre de chambres | 3 |
| Nombre de WC | 1 |
| Séjour | Oui |
| Type de chauffage | Collectif Gaz |
| Type cuisine | Séparée |
| Etage | 4 |
| Date réalisation DPE | 23/11/2022 |
| Version DPE | Après le 1 juillet 2021 |
| Coût mini consommation | 1 100,00€ |
| Coût max consommation | 1 530,00€ |
| Année de référence DPE | 2021 |
| Ascenseur | Oui |
| Placards | Oui |
| Prix | 2 227,90 € |
| Complément de loyer | 428,90 € |
| Honoraires TTC | 1 517,88 € |
| Honoraires / Etat des lieux | 350,28 € |
| Charges | 200,00 € |
| Dépôt de garantie | 2 027,90 € |





















Visite 3D